Charakteristik

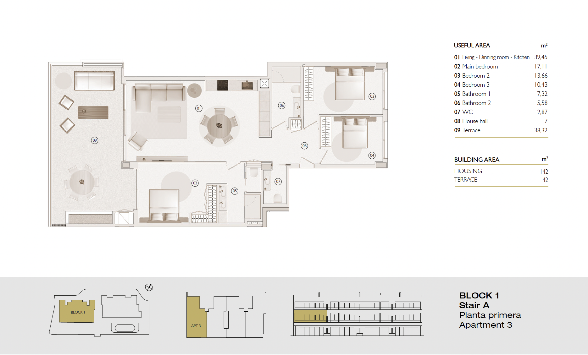
Schlafzimmer: 3
Badezimmer: 2
Gebaut: 141m2
Küchen: 1
Einbauschränke: 3
Parkmöglichkeiten: 2
Energieleistung: A
Baujahr: 2027
Orientierung: Süd
Terrasse: 173 m2
Entfernung zum Strand: 7 Km.
Entfernung zum Flughafen: 45 Minss.
Entfernung zu Annehmlichkeiten: 1 Km.
Entfernung zum Golfplatz: 500 Mts.
Klimaanlage
Aufzug
Küchengeräte
Garage
Gemeinschaftspool
Abstellraum
Dachterasse
Ext. elektrische Rolläden
LED Beleuchtung
Wasserfilter
Fussbodenheizung in Badezimmern
Badezimmer (komplett ausgestattet)
Küche (komplett eingerichtet)

Beschreibung

Citrus Apartments im Herzen des Las Colinas Golf & Country Clubs, mit 2 oder 3 Schlafzimmern. Tiefgaragenstellplätze und Abstellkammer, angelegte Gärten und ein Gemeinschaftspool mit Südterrassen sowie Golf-/Meerblick von der ersten Etage und den Penthouse-Wohnungen. Gebaut nach höchstem Standard mit Klimaanlage (Luftzone), Fußbodenheizung in den Bädern, elektrischen Rollläden in den Schlafzimmern, indirekter LED-Beleuchtung im Wohn- und Schlafzimmer sowie Elektrogeräten von Siemens/Bosch in der Küche. Die Bäder sind mit Waschbecken, Duschen und Spiegeln ausgestattet. Die Schlafzimmer verfügen über Einbauschränke und Anschlüsse für Internet (Glasfaser), Strom und TV. Umgeben von mediterranem Wald und mit Blick auf den preisgekrönten Golfplatz.

Videos

Hypothek

Diese hier angegebenen Informationen unterliegen Fehlern und sind nicht Bestandteil eines Vertrages. Das Angebot kann ohne vorherige Ankündigung geändert oder zurückgezogen werden. Die Preise beinhalten keine Einkaufskosten.

Berechnen Hypotheken

Geldwechsel

  • Pfund: 780.154 GBP
  • Russischen Rubel: 780.154 RUB
  • Schweizerfranken: 826.175 CHF
  • Chinesischen Yuan: 7.203.229 CNY
  • Dollar: 1.055.832 USD
  • Schwedische Krone: 9.668.685 SEK
  • Die norwegische Krone: 9.860.215 NOK
ONLINE VIEWINGS